We Help You Buy / We Help You Sell

Buying? Selling? Brokering the Deal? Put us to work for you!

Since opening our doors, Ellipsis has enjoyed fruitful relationships with residential real estate professionals and their clients.  We have been a valuable partner in assisting with the purchase and sale of properties by empowering our clients with the tools they need to make an educated and informed decision.  Through our consultation, our drawings & creative work and our meaningful partnerships with engineering consultants, contractors, city permitting officials, copywriters and graphic designers, we assist our real estate clients in everything from the marketing and sale of their property to the assessment, visualization and renovation of the property they intend to purchase.

By building rich relationships with real estate agents, real estate attorneys, insurance providers and mortgage professionals, we have become a valuable resource to many clients during their real estate transactions.  Having a versatile, creative tool set at your disposal can widen your range of options and provide you with the agility you need to get the deal done.  

The paragraphs to follow provide an overview of the services we offer in support of real estate professionals and their clients.  

Buyer Services - Opportunity Evaluation

In love with a property but just can’t look past that one deal breaker?  Whether you’re a first time home buyer or a seasoned pro, buying a home is a big step.  Having professionals on your side is empowering as you navigate the many ins and outs of finding the right property. 

“This would be perfect if it just had space for a nursery”  

“This would be the one if it was just a little more open and airy” 

“I think we’d be interested if it had a better outdoor space” 

“It has great character but could it be converted to single-family home?”

We regularly work with residential clients as they search the real estate market.  We assist in evaluating each property, its opportunities and its challenges.  We provide the tools necessary to envision each property’s unique potential and help build the framework for making informed purchasing decisions.

Get to the closing table with a vision and a game plan!  Let us be your resource in evaluating the properties you’re considering and put our creativity to work for you.

Buyer Services - Zoning / Code Analysis

Think it’s the perfect building but it’s just too small?  Many buildings have hidden potential that is just waiting to be uncorked by a forward-thinking buyer.

“Can we add a third level?”  

“Can we extend the kitchen by building an addition?”  

“Can we add that roof garden that we’ve always talked about?”

Buyer Services - Visioning

Think you could make it work but you’re just not sure?  Imagining alternate layouts for spaces can be a challenging and ensuring that your vision can be realized can weigh heavily on your mind as you make a purchase.  Don’t just hope you can do it,  know you can do it.  Let us show you your options.  We’ve helped many of our clients understand the reach of their imagination by providing dimensioned space plan drawings prior to making their purchases.

Need to visualize what your space will look like once you update it?  Updated finishes and fixtures can transform a space.  Let us show you what a few thoughtful choices can do to breath new life into your new purchase.

Not sure if your furniture will fit?  We can place your existing collection in your future space, in real dimension, long before you move in.  This allows you to have all of your ducks in a row prior to moving day.

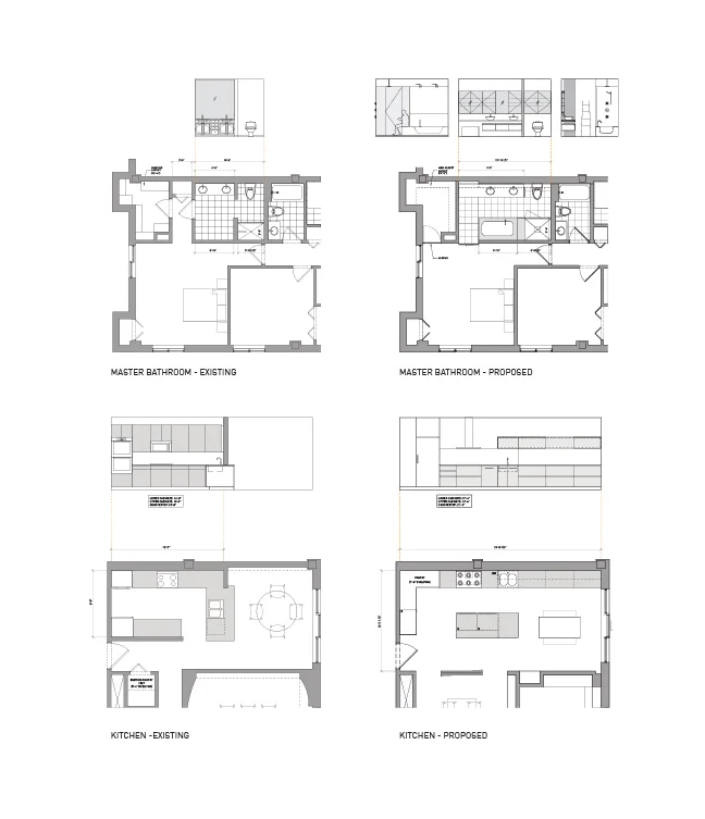
Kitchen Layout Studies

Kitchen Layout Studies

Kitchen and Bathroom Design Schemes

Kitchen and Bathroom Design Schemes

Seller Services - Seller Documents

Need drawings to explain the unique qualities of your space on the MLS?  

“I wish my MLS photos could show how the furniture can be rearranged for entertaining.  The space really opens up!”  

“The flow of space from the front to the back of our condo is so nice.  I wish buyers could understand that online” 

“It’s too bad we didn’t take some photos of the back yard last summer at our cookout.  The back yard is so alive when people are over.”

Sometimes, photographs are not enough.  They don’t capture the nuances that make your space great.  Let us help you shine a light on those special qualities through floor plan drawings, 3D digital renderings, digital image enhancement (Photoshop) and explanatory diagrams of your space.

Seller Services - Sweetening the Pot

Your buyer is interested but is getting stuck on that one thing that’s missing?  Perhaps the walk-in closet is too small.  Perhaps the floor plan is not to their liking. Perhaps you never got around to building that back deck.  We can help!  By clearly communicating the many possibilities of the property, our drawings and creative work can be the tipping point in getting to the closing table.  

We not only handle the creative visioning and the drawings, we partner with quality contractors to produce real pricing proposals for future updates.  These allow you to entice your buyer with exciting possibilities.  If included in the contract, these documents can become tools to incentivize the sale of your home via credits toward future updates.

Seller Services - Consultation

Your buyer is skeptical because of a perceived structural, mechanical, electrical or plumbing issue?  We work with a comprehensive team of in-house engineering know-how, knowledgeable consultants and rigorous professional contractors to assess any site- or building-related issue and provide reports in writing which formally outline the magnitude of the issue and, if necessary, a clear road map to resolving it efficiently.

Floor Plan Highlighting Storage Opportunities

Floor Plan Highlighting Storage Opportunities

Digital Rendering by Kazar II

Digital Rendering by Kazar II

Home Circulation Diagram

Home Circulation Diagram

View and Building Expansion Studies

View and Building Expansion Studies

Site Evaluation Diagram

Site Evaluation Diagram